Дизайн квартиры 90м²: уют в днепровских мотивах
Оттенки днепровских плавней и теплая фактура ясеня стали основой нового проекта.

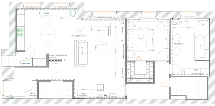
- Тип недвижимости: квартира в доме начала XX века
- Метраж: 90 м²
- Стиль: современный интерьер
- Основная идея проекта: создать спокойный и функциональный интерьер, не перегруженный мебелью
- Цветовая гамма: синие, серые, мятные и песочные оттенки, дополненные черными и красными акцентами
- Авторы проекта: дизайнер, студия Puzzle, dspuzzle.com


Современный интерьер: создание гармонии в квартире
Дизайн интерьера квартиры в Киеве – это всегда поиск баланса между функциональностью, эстетикой и индивидуальными предпочтениями владельцев. Если вы ищете дизайн квартир в Киеве, важно найти специалистов, которые смогут воплотить ваши мечты в реальность. В данном проекте основной задачей было создание светлого и просторного пространства, отражающего любовь к природе.
Этап 1: Планировка и зонирование
Первым шагом в создании дизайна квартиры является планировка. Важно продумать расположение функциональных зон и обеспечить удобную связь между ними. В рассматриваемом случае кухня, коридор и гостиная были объединены в общее пространство. Для визуального разделения зон использовались реечные конструкции, выполняющие роль стеллажей и не перегружающие интерьер. Открытая планировка – популярное решение для современных квартир. Она позволяет создать ощущение простора и свободы. Однако важно помнить о правильном зонировании, чтобы каждая зона имела свою функциональную нагрузку и не нарушала общую гармонию.
Этап 2: Цветовая палитра и материалы
Цветовая гамма играет ключевую роль в создании атмосферы в квартире. В данном проекте были выбраны синие, серые, мятные и песочные оттенки, напоминающие о днепровских пейзажах. Эти цвета создают ощущение спокойствия и умиротворения. Как отмечают эксперты, использование природных оттенков способствует созданию более гармоничной и расслабляющей атмосферы в доме. При выборе материалов предпочтение отдавалось натуральным фактурам, таким как дерево и камень. Деревянный паркет и мебель добавляют теплоты и уюта в интерьер. Важно учитывать, что выбор материалов должен соответствовать общему стилю квартиры и быть практичным в использовании.
Этап 3: Мебель и декор
Выбор мебели – важный этап в создании современного интерьера. Необходимо подбирать предметы, которые соответствуют стилю квартиры и функциональным потребностям владельцев. В данном проекте часть мебели была приобретена в магазинах, а часть – изготовлена на заказ по индивидуальным проектам. Это позволило создать уникальный и функциональный интерьер, учитывающий все особенности планировки. Декор играет завершающую роль в создании атмосферы в квартире. Картины, текстиль, светильники – все эти элементы должны гармонично сочетаться друг с другом и отражать индивидуальность владельцев. Важно не перегружать интерьер лишними деталями, чтобы сохранить ощущение простора и легкости. 







Советы по созданию функционального интерьера
При создании дизайна интерьера важно учитывать не только эстетические, но и функциональные аспекты. Если вам нужна профессиональная студия дизайна интерьера, обратите внимание на портфолио и отзывы клиентов. Вот несколько советов, которые помогут вам создать комфортное и практичное пространство:
- Используйте многофункциональную мебель.
- Оптимизируйте системы хранения.
- Уделите внимание освещению.
- Не забывайте о деталях и аксессуарах, которые отражают вашу индивидуальность.
Таблица: Сравнение стилей интерьера
Выбор стиля интерьера – важный шаг в создании гармоничного пространства. Разные стили имеют свои особенности и подходят для разных типов квартир и личных предпочтений. Вот сравнительная таблица нескольких популярных стилей:
| Стиль | Характерные черты | Подходящие материалы |
|---|---|---|
| Скандинавский | Минимализм, светлые тона, натуральные материалы | Дерево, лен, хлопок |
| Лофт | Индустриальный стиль, открытая планировка, кирпичные стены | Кирпич, металл, бетон |
| Минимализм | Простота, функциональность, отсутствие лишних деталей | Стекло, металл, камень |
| Классический | Элегантность, изысканность, дорогие материалы | Дерево, мрамор, шелк |
[aip_warning]При планировании ремонта и дизайна интерьера всегда учитывайте строительные нормы и правила безопасности. Несоблюдение этих требований может привести к негативным последствиям.[/aip_warning] В заключение, создание дизайна интерьера квартиры – это сложный, но увлекательный процесс. Важно учитывать все детали, от планировки и цветовой гаммы до выбора мебели и декора. Грамотный подход к дизайну позволит создать уютное и функциональное пространство, которое будет радовать вас долгие годы. Современный интерьер – это отражение индивидуальности владельцев, сочетающее в себе красоту и практичность.

Как здорово, что удалось передать атмосферу загородного дома! Мне кажется, такие оттенки действительно создают уют. Интересно, какие элементы декора могут добавить ещё больше тепла в этот интерьер?
Согласен, Арсентий! Загородные мотивы действительно создают особую атмосферу. Я думаю, что мягкие текстильные элементы, такие как пледы и подушки, могут добавить уюта. Также растения и деревянные детали прекрасно дополнят интерьер. А ты какие идеи рассматриваешь?