Квартира с искусством: дизайн 60 м² в сталинке (Киев)
Главное украшение этой небольшой квартиры – произведения искусства из коллекции владельцев. Рассмотрим, как создавался этот интерьер.
Гостиная, фрагмент. Огромное окно выходит на парк.
Автор проекта – дизайнер.
ОБЩИЕ ПАРАМЕТРЫ
Тип недвижимости: двухкомнатная квартира в доме сталинской эпохи
Где находится: в одном из районов Киева
Метраж: 60 кв. м
Основная идея проекта: светлый дом, полный искусства.
Цветовая гамма: белый + серый + дерево
Автор проекта: дизайнер
Гостиная, фрагмент. Стол и стулья, винтаж. Диван, переехал из предыдущей квартиры владельцев. Столик Twins. Люстра, винтаж, тоже из предыдущей квартиры владельцев. Над диваном работы художника.
Это первая собственная совместная квартира владельцев — ранее они предпочитали жить в съемных квартирах большей площади. Хозяева — страстные коллекционеры искусства и винтажа, и главной задачей было разместить в квартире максимальное количество искусства, не перегрузив интерьер. Но все-таки пришлось сформировать определенный запасник из неповешенных работ, на тот случай, если им захочется сменить «экспозицию».
Первоначальная планировка предполагала изолированную кухню и две комнаты. Пока у владельцев квартиры нет детей, но в перспективе они могут появиться, поэтому еще одной задачей было предусмотреть возможность детской.
Вид из кухни на гостиную.
Главная цель при разработке планировки – открыть визуальную ось на огромные окна с выходом на балкон (оттуда красивый вид на парк), а также объединить кухню с общим пространством.
Гостиная, фрагмент. Над диваном работы художника. Журнальный столик.
Отделить зону прихожей от гостиной решили двумя кубами двойного назначения: шкафы для верхней одежды со стороны прихожей и красивые стеллажи для книг и предметов искусства со стороны гостиной. Кубы симметричные, они зонируют пространство, а также поддерживают ось, ведущую на балкон.
Гостиная, фрагмент. Симметричные деревянные шкафы, отделяющие гостиную от прихожей, изготовлены на заказ. Журнальный столик. Декоративная подушка горчичного цвета.
Главной задачей было разместить в комнатах максимальное количество произведений искусства, не перегрузив интерьер
Гостиная, фрагмент. Ваза на столе.
Гостиная, фрагмент. Белая ваза.
Окно кухни тоже выходит на парк, поэтому возникло желание организовать возле него небольшую полубарную зону для завтраков или вечерних легких посиделок. Это стало любимым местом хозяйки дома.
Кухня. Стулья, переобиты в ткань. Над плитой работа художника. На соседней стене — литье.
Кухня, фрагмент. Из окна перед барной стойкой открывается красивый вид на парк.
Кухня, фрагмент.
Нестандартным предложением было разделить одну из комнат на две зоны: кабинет (который в будущем может стать детской с окном) и спальню. Между ними поставили большие раздвижные двери с матовыми стеклами. Обычно они открыты, но у владельцев всегда есть возможность их закрыть и уединиться для работы в кабинете. А когда дверь в кабинет открыта со стороны гостиной, квартира кажется максимально большой.
Спальня, фрагмент. Кровать. Прикроватные комоды, винтаж. Бра, винтаж. Над изголовьем работа художника. Белая ваза.
Учитывая, что у владельцев практически все искусство достаточно яркое и акцентное, квартиру захотелось оформить в белый цвет, добавив акценты в оттенках дерева и в керамограните, который лежит на полу в прихожей и ванной.
Вид из кабинета на спальню. Кровать. Постельное белье. Ковер. На стене работа художника.
«В большую картину художника, я влюбилась с первого взгляда. Она нереально красивая»
Спальня. Винтажные тумбы были найдены.
Хотелось сохранить обаяние советского ретро, поэтому основные предметы интерьера — это винтаж с характером той эпохи. Дополнительной задачей было вписать в интерьер предметы из предыдущей квартиры клиентов (диван и люстру, которая висит в гостиной).
Кабинет. Стол. Бра. Ковер. Над столом работа художника. По верхней обвязке развешены работы из серии «Раскраски».
Вид из кабинета на обеденную зону. Стул. Ковер. На столе ваза.
Почти все винтажные предметы найдены случайно, как, например, прикроватные комоды. Долгое время владельцы жили без них (как временное решение в спальне стояли небольшие столики из предыдущей квартиры). Но определенно хотелось подобрать именно комоды, как дополнительное место хранения, и именно винтажные. В какой-то момент даже предлагали сделать такие же на заказ. Но владелец сказал твердое нет: «Хочу настоящий винтаж». И буквально через пару дней наткнулись на эти два чудесных комода с идеальными параметрами. Они были согласованы за пять минут, осталось лишь привести их в порядок.
Прихожая. Винтажная банкетка куплена и переобита в бархат. Винтажный потолочный светильник. Над банкеткой работа художника. На соседней стене графика художника.
В целом проект получился собранным, цельным и подходящим для владельцев. Квартира приносит им большое удовольствие, в ней много деталей, которые радуют глаз и создают их личный комфорт.
Ванная комната. Бра, винтаж. Белая ваза. Полотенца.
Ванная комната, фрагмент. Журнальный столик. Над ним работа художника.
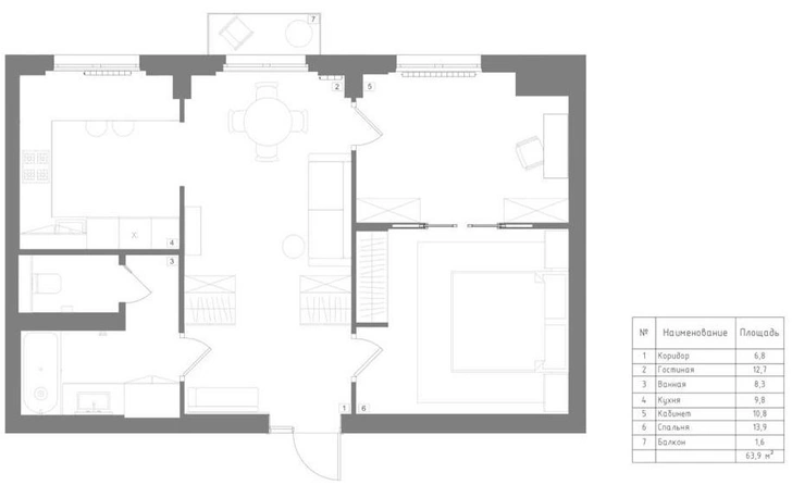
План квартиры 60 кв. м. Проект дизайнера.




















Как здорово, что владельцы смогли создать такой уютный и художественный интерьер! Интересно, как искусство влияет на атмосферу в доме. Уверен, что в такой квартире жить — одно удовольствие!!
Согласна, Александр! Искусство действительно добавляет особую атмосферу и делает пространство живым. В такой квартире, как ты говоришь, хочется находиться и вдохновляться каждый день!
Интересно, как искусство может влиять на атмосферу в квартире, но вот с пространством, похоже, возникли проблемы. Наверное, не так легко уместить всё это в 60 квадратов, особенно если хочется сохранить легкость.
Согласна, Николай! Действительно, 60 квадратов — это не так много, и важно правильно расставить акценты, чтобы не перегрузить пространство. Искусство может добавить атмосферы, но нужно помнить и о комфорте.
Дизайн квартиры выглядит интересно, но есть ощущение, что искусство иногда перетягивает внимание на себя. Не хватает гармонии между предметами интерьера и картинами. Хотя, возможно, это и есть задумка. 🙂
Согласен с тобой, Евгений! Иногда действительно кажется, что искусство немного отвлекает от общего дизайна. Интересно, как бы выглядела квартира с более сбалансированными акцентами. Но, возможно, это и есть цель — создать яркие акценты.
Да, Иван, ты прав! Я тоже думаю, что баланс между искусством и дизайном очень важен. Яркие акценты могут действительно выделять пространство, но если они слишком навязчивые, то могут отвлекать. Интересно представить, как выглядела бы квартира с более гармоничными элементами.
Согласен с тобой, Алексей! Баланс действительно играет ключевую роль. Яркие акценты могут добавить характер, но главное — чтобы они не перегружали пространство. Интересно было бы увидеть примеры таких гармоничных решений!
Согласна, Александр! Баланс действительно важен в интерьере. Я тоже люблю, когда яркие акценты подчеркивают стиль, но не отвлекают от общего ощущения пространства. Будет здорово, если кто-то поделится примерами таких решений!
Согласен, Ксения! Яркие акценты действительно могут добавить интерес, не перегружая пространство. Было бы классно увидеть примеры таких интерьеров, чтобы вдохновиться.
Мне понравилась идея сделать акцент на искусстве в интерьере, но иногда кажется, что пространство перегружено деталями. Важно найти баланс, чтобы не потерять ощущение легкости и уюта.
Согласна с тобой, Анастасия! Искусство действительно может добавить шарма, но перегруженность деталями иногда создает ощущение хаоса. Баланс очень важен, чтобы пространство оставалось комфортным и уютным.
Прочитала статью, и, знаете, мне кажется, что такие квартиры с искусством часто выглядят перегруженными. Как будто хочется больше простоты, а не умиротворения. Интересно, что в итоге выберут хозяева для своих запасников.!
Согласна с тобой, Елена! Иногда действительно кажется, что слишком много деталей может перегружать пространство. Простота может добавить легкости и гармонии. Будет интересно посмотреть, как хозяева справятся с этим!