35 м² – Дизайн квартиры-трансформера в Киеве!
Авторский дизайн маленькой квартиры, где стены трансформируются, подиум служит диваном и местом для хранения, а гардероб скрыт за шкафом.



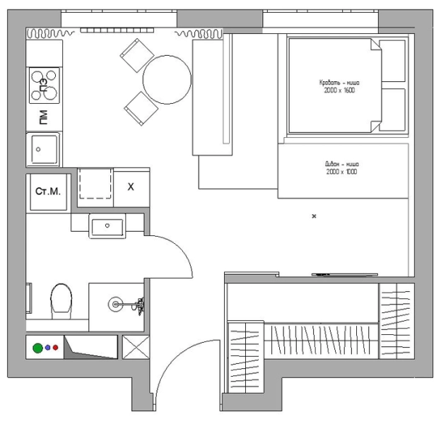
«На 35 квадратных метрах разместились шесть зон: прихожая, гардеробная, гостиная, спальня, кухня с обеденным столом и ванная комната»





Приемы визуального расширения пространства:
- Много зеркал.
- Раздвижные и стеклянные перегородки.
- Встроенная мебель, которая воспринимается как часть архитектуры.


Когда каждый квадратный метр на счету, как в наших небольших квартирах в Киеве, приходится идти на хитрости. В этой статье мы рассмотрим, как максимально эффективно использовать пространство в дизайне маленькой квартиры 35 м2.
Минимализм как философия пространства
Интерьер маленькой квартиры в стиле минимализм – это не просто мода, это необходимость. Чистые линии, светлые тона и функциональная мебель – вот киты, на которых держится комфорт в ограниченном пространстве. Из своего 12-летнего опыта работы с дизайном интерьеров, я убедился, что минимализм помогает создать ощущение простора и свободы даже в самой маленькой квартире.
Трансформация пространства: Мебель-трансформер
Мебель-трансформер – это спасение для небольших квартир. Диван, превращающийся в кровать, стол, который можно сложить, и встроенные шкафы – все это позволяет экономить место и делает интерьер более функциональным. На рынке Украины сейчас представлено множество вариантов такой мебели, от бюджетных до премиум-класса.
Визуальные иллюзии: Игра света и зеркал
Зеркала – отличный способ визуально увеличить пространство. Разместите большое зеркало на стене, и комната будет казаться вдвое больше. Светлые тона в отделке также способствуют визуальному расширению пространства. Используйте белые, бежевые и пастельные оттенки для стен и потолка.
Дизайн квартиры минимализм: Практические советы
- Вертикальное хранение: Используйте полки до потолка, чтобы максимально использовать вертикальное пространство.
- Многофункциональная мебель: Выбирайте мебель, которая выполняет несколько функций.
- Светлые тона: Используйте светлые цвета для стен, потолка и пола.
- Минимум декора: Избегайте излишнего декора, чтобы не загромождать пространство.
В заключение, дизайн маленькой квартиры 35 м2 – это вызов, который можно успешно решить с помощью минимализма, функциональной мебели и визуальных иллюзий. Главное – продумать все детали и создать пространство, которое будет удобным, комфортным и стильным. Не бойтесь экспериментировать и создавать свой уникальный интерьер!
Как здорово, что в таком маленьком пространстве можно создать столько функциональности! Мне очень нравится идея с трансформируемыми стенами и подиумом. Это открывает такие возможности для жизни! Хотелось бы увидеть больше подобных проектов!
Интересная идея с трансформацией пространства, но кажется, что в таком минимализме теряется уют. Как можно жить в квартире, где всё постоянно меняется? Не знаю, может, это не для меня.
Интересно, как можно использовать так мало пространства! Но все же возникает вопрос: не потеряется ли уют из-за слишком функционального подхода? Иногда кажется, что в погоне за практичностью мы забываем о комфорте.
Сложно представить, как можно жить в такой маленькой квартире и при этом чувствовать себя комфортно. Все эти трансформации звучат как постоянная борьба с пространством. Неужели это действительно удобно?